全国服务热线 18137723005
BYC草莓视频成人APP下载IOS轴承***介绍草莓视频APP成人的安装

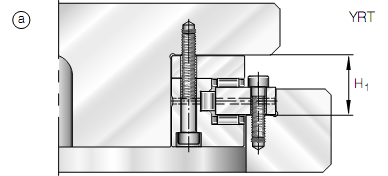
1.轴承安装示意图
1.1对配合结构的要求见右图:
在安装轴承前,您必须确保安装表面和安装环境的清洁,运输时固定螺钉保护轴承零件,为了较易定心安装,安装时固定螺钉可以松开,安装后固定螺钉应再拧紧或者***好用定位螺钉替换固定螺钉。
1.2有或无附加支撑环都可安装L-截面环1
a) 无支撑环的,轴承代号YRT
b) 用L-截面环支撑环的,轴承代号YRT-VSP, L-截面环的整个表面都必须得到支撑。
1.3装配力只能通过被安装的轴承套圈进行传递,绝不能通过滚动体传递。
1.4安装和拆卸式不要分开或交换轴承零件。
1.5启动摩擦力矩是尺寸表中所列轴承摩擦力矩的3~3.5倍。
1.6定位螺钉应用扭力扳手以呈十字交叉的形式来拧紧见右图。
草莓视频成人APP下载IOSBYC草莓视频成人APP下载IOS轴承是一家***生产高精度草莓视频成人APP免费和草莓视频APP成人的生产厂家,草莓视频成人APP下载IOS拥有******的技术团队以及技术精湛的生产员工,可以为每一位客户解答选型、安装以及使用的问题。草莓视频成人APP下载IOSBYC草莓视频成人APP下载IOS轴承随时欢迎你们的到来。
【BYC草莓视频成人APP下载IOS轴承 www.wfbdgs.com 草莓视频成人APP免费&草莓视频APP成人&工业机器人轴承&谐波减速机轴承】
本文是【http://www.wfbdgs.com 草莓视频成人APP免费 BRT转台轴承 草莓视频APP黄版下载 洛阳草莓视频成人APP下载IOS轴承有限公司】原创,转载时请务必以链接形式注明作者和出处
地 址:http://www.wfbdgs.com/home-newsinfo-id-201.html